УГРШ-50Н-0, УГРШ-50Н, УГРШ-50В-0, УГРШ-50В Установка газорегуляторная шкафная
Газорегуляторная установка УГРШ-50Н(В)-2 на базе двух регуляторов давления газа РДП-50 является самой популярной моделью в нашей линейке УГРШ. Высокая точность поддержания выходного давления (в пределах 1-2%) и исключительная надежность - основное качестве данной модели УГРШ.
Установка способна работать в системах газоснабжения от сколь угодно малых расходов газа до 6800 м3/ч. и давлением в газопроводе от 0.05 до 1.2 МПа.
Установка УГРШ изготавливается в четырех вариантах:
- УГРШ-50Н-2-О низкое выходное давление, с обогревом;
- УГРШ-50Н-2 низкое выходное давление, без обогрева;
- УГРШ-50В-2-О высокое выходное давление, с обогревом;
- УГРШ-50В-2 высокое выходное давление, без обогрева.
Характеристики
| Наименование параметра или размера | УГРШ-50Н-2-О | УГРШ-50Н-2 | УГРШ-50В-2-О | УГРШ-50В-2 |
| Регулируемая среда | природный газ ГОСТ 5542 | природный газ ГОСТ 5542 | природный газ ГОСТ 5542 | природный газ ГОСТ 5542 |
| Диапазон входных давлений, МПа | 0,05 - 1,2 | 0,05 - 1,2 | 0,1 - 1,2 | 0,1 - 1,2 |
| Диапазон выходных давлений, МПа | 0,0015 - 0,06 | 0,0015 - 0,06 | 0,06 - 0,6 | 0,06 - 0,6 |
| Пределы настройки контролируемого давления клапана ПЗК-50: - нижний предел, МПа - верхний предел, МПа |
0,0003 - 0,003 0,002 - 0,075 |
0,0003 - 0,003 0,002 - 0,075 |
0,003 - 0,03 0,03 - 0,75 |
0,003 - 0,03 0,03 - 0,75 |
| Диапазон настройки предохранительного сбросного клапана ПСК 25, МПа | 0,0005 - 0,07 | 0,0005 - 0,07 | 0,06 - 0,7 | 0,06 - 0,7 |
| Стабильность поддержания выходного давления, %, не более | ±5 | ±5 | ±5 | ±5 |
| Вид теплоносителя | продукты сгорания природного газа | - | продукты сгорания природного газа | - |
| Тепловая мощность горелки, кВт | 1,85+0,185-0,09 | - | 1,85+0,185-0,09 | - |
| Расход газа на горелку, м3/ч | от 0,16 до 0,25 | - | от 0,16 до 0,25 | - |
| Время включения горелки, с, не более | 90 | - | 90 | - |
| Время отключения горелки при отключении подачи газа, с, не более | 90 | - | 90 | - |
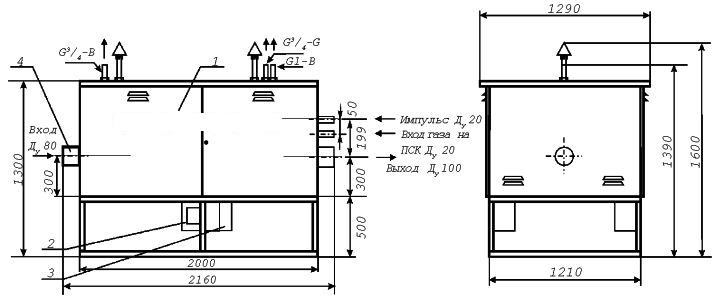
| Соединение с газопроводом: - вход, мм - выход, мм |
80 100 |
80 100 |
80 100 |
80 100 |
| Габаритные размеры, не более: - длина, мм - ширина, мм - высота, мм |
2160 1250 1600 |
2160 1250 1390 |
2160 1250 1600 |
2160 1250 1390 |
| Масса, кг, не более | 600 | 600 | 600 | 600 |
Схема
