ДРП 3 (B249) с байпасом, ДРП 3 (B249 AP) с байпасом Домовый газорегуляторный пункт
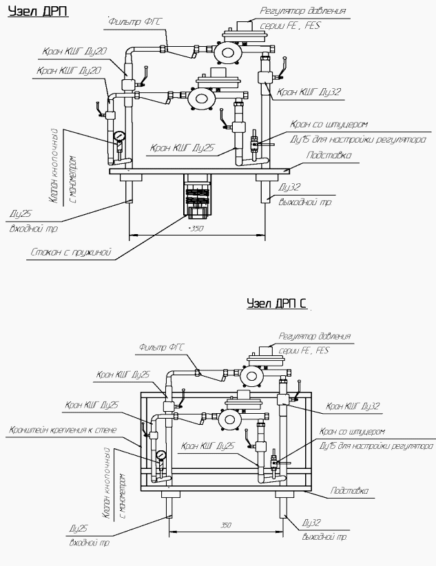
ДРП производят с отключающим устройством на входе. ДРП оснащен сетчатым фильтром Ду20 с номинальным давлением 1,6МПа,предназначен для очистки среды от механических примесей. Измерение входного давления ДРП производится манометром с диапазоном показаний 0-0,6МПа; класс точности 1,5. Для защиты газопровода от дальнейшего повышения роста входного давления газа или значительного понижения выходного давления предусмотрен встроенный в регулятор быстрозапорный клапан (ПЗК).
Запорная арматура установленная на линии редуцирования ДРП с байпасом исключает утечки газа в месте присоединения так как используется под приварку. На входном и выходном трубопроводах установлены манометры для визуального определения давления.
Корпус ДРП с байпасом может быть изготовлен для установки на землю с опорами или настенного исполнения с усиленной задней стенкой и отверстиями для крепления.
Диапазон рабочих температур: -40ºС ... +60ºС
- ДРП производят с отключающим устройством на входе.
- ДРП оснащен сетчатым фильтром Ду20 с номинальным давлением 1,6 МПа, предназначен для очистки среды от механических примесей.
- Измерение входного давления ДРП производится манометром с диапазоном
показаний 0-1.0 МПа; класс точности 1,5. - ДРП оснащен регулятором фирмы "TARTARINI"
- Для защиты газопровода защиты газопровода от дальнейшего повышения роста входного давления газа или значительного понижения выходного давления применен встроенный в регулятор быстрозапорный клапан (ПЗК).
Покрытие корпуса ДРП: порошковая эпоксиполиэфирная краска.
Гарантия на лакокрасочное покрытие корпуса: не менее 10 лет.
Диапазон срабатывания ПЗК
В249 по повышению давления: 0,0025-0,012МПа
В249 AP: 0,0012-0,05МПа
B249 по снижению давления 0,0007-0,0044МПа
B249 AP: 0,0044-0,04МПа
Установка:
ДРП - на подвижной подставке
Ресурс работы ДРП: 12 лет
Регулятор устойчиво функционирует с нулевого расхода газа.

