Pietro Fiorentini, ДРП 4, 4С (FE-10-S); ДРП 4, 4С (FE-25-S); ДРП 4, 4С (FES-U) Домовый газорегуляторный пункт
ДИАПАЗОН РАБОЧИХ ТЕМПЕРАТУР:
-40ºС ... +60ºС
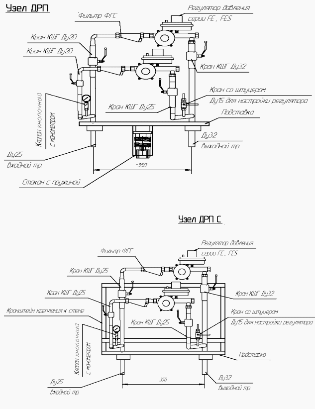
ДРП производят с отключающим устройством на входе.
ДРП оснащен сетчатым фильтром Ду20 с номинальным давлением 1,6 МПа, предназначен для очистки среды от механических примесей.
Измерение входного давления ДРП производится манометром с диапазоном показаний 0-0,6 МПа; класс точности 1,5.
ДРП оснащен регуляторами фирмы “Pietro Fiorentini”, Италия.
Для защиты газопровода за регулятором от временного чрезмерного роста давления газа, в регуляторе предусмотрен сбросной клапан (ПСК); в случае последующего повышения входного давления газа или значительного понижения выходного, срабатывает встроенный в регулятор быстрозапорный клапан (ПЗК).
ПОКРЫТИЕ КОРПУСА ДРП:
порошковая эпоксиполиэфирная краска.
ГАРАНТИЯ НА ЛАКОКРАСОЧНОЕ ПОКРЫТИЕ КОРПУСА:
не менее 10 лет.
УСТАНОВКА:
- ДРП4С - на стене
- ДРП4 - на подвижной подставке
РЕСУРС РАБОТЫ ДРП:
12 лет
Регулятор устойчиво функционирует с нулевого расхода газа.
Вариант присоединения ДРП к входному и выходному газопроводу
| ДРП1К, регулятор FE-10-S |
ДРП2К, регулятор FE-25-S |
ДРП3К, регулятор FES-U |
|
| Допустимое входное давление: | 0,86 МПа | 0,86 МПа | 0,86 МПа |
| Диапазон выходного давления: | 1,8 ... 2,5 кПа | 1,8 ... 2,5 кПа | 1,8 ... 2,5 кПа |
| Установленная величина давления срабатывания запорного клапана | 3,5 ... 5,0 кПа | 3,5 ... 5,0 кПа | 3,5 ... 5,0 кПа |
| Максимальная пропускная способность при входном давлении 0,12 МПа: | 12 м3/час | 30 м3/час | 62 м3/час |
